
I was really hoping to finish my desk chair today so I could show you the finished chair, but my mom and I ran into a huge problem on that project that took us too long to figure out yesterday, so we didn’t finish it. I really hope we can finish it today so I can show you the finished chair tomorrow. It looks so pretty and that velvet fabric is gorgeous!
But in the meantime, I realized that I did a lot of damage to them yesterday. I wrote the whole post, I mentioned that we finally had a floor plan and that there was one proposal in particular that really influenced me. And then I didn’t show them any of those things. I didn’t show them the influential floor plan proposal and I didn’t show them our new floor plan.
I didn’t feel quite ready to share it. I wanted to keep it to myself for a little while longer, just to make sure I wasn’t going to make any more changes (and I could still make more changes, of course). But really, I just wanted to enjoy it without any further input from anyone. In a way, I got an overload of input, which I asked for, loved, and appreciated greatly. But that flood of ideas, information, and creativity didn’t let my mind rest. I was losing sleep, lying awake in bed, eyes wide open, until 2:45 a.m. some nights.
So, once I made the decision and my mind was finally able to calm down and I was able to sleep well, I just wanted to stay in that calm for a while and soak it in. I wanted to be able to admire the new floor plan without questions or doubts. And I wanted to enjoy the plans without any further comments, unless those comments were specific answers to specific questions I asked. And thankfully, my mom has been here the last few days and has filled that role perfectly.
But last night I realized that it’s not fair. I asked everyone for their feedback and many of you very generously took the time to draw the plans and write down the explanations and rationales for your plans. So to say, “Okay, thanks! I’ve got a plan now! But you’ll have to wait until some unknown future date when I have the architectural drawings to see the plan,” well, that wasn’t very nice, was it?
So I’ll tell you a little bit more. First, this is the floor plan that really opened my eyes to new possibilities. This one was Jenny’s.
And in particular, it was what she suggested for this area that really impressed me.
And when I say “it blew me away,” you’ll remember that I told you yesterday that I initially dismissed this idea in about three seconds. I took one look and thought, “What madness! I can’t do that!”After all, that plan requires me to get rid of the half-bathroom in my studio.
But over the next hour, I really started to think about it. You know what room I haven’t used in over a year? The studio’s half bathroom. That room has been a wreck since I was planning to redo it and had started working on it before I turned my attention to the studio. So when I’m in my studio and need to use the bathroom, I go to the hall bathroom. It’s never seemed like a problem to me.
Plus, I always thought it was weird that I had to come in through the back door from the garage into my studio and walk through it to get to the main part of the house. But turning that bathroom into a pantry that leads directly into the kitchen solves that problem! It turns that awkward entrance from the garage through the studio into something that feels much more natural going through a pantry that leads directly into the kitchen. That makes sense to me.
Seeing Jenny’s floor plan was also the first time I seriously considered removing the wall between the current kitchen and the music room. In fact, for about two days I was sure I was going to go in that direction. I drew up a floor plan with those rooms combined into one big living room, sent it to my mom, and said, “This is it! This is the new plan!” But eventually, I changed my mind about it.
As for the other side of the house, there were other plans that really caught my eye. For some reason, it had never occurred to me to add a guest bedroom to the back of the house. My mind was stuck thinking that if we had a guest bedroom, it had to be where it is now. So, seeing plans with the guest bedroom as part of an addition really helped me break out of that tunnel vision. That includes this one from Diana.
This one from MJ…
This one from Christina…
And this one from Maureen…
They all had the guest bedroom at the back of the hall bathroom, with the bathroom entrance moved to the opposite side of where it is now. And I loved that because if we can move the bathroom entrance, that gives me the private master suite that I really want. Basically, everything beyond the framed opening in the music room would be the master suite, and I think it would be really nice to put some French doors in that opening.
So when I put all of those ideas together (Jenny’s kitchen and pantry, as well as her suggestion of combining the kitchen and music room, adding the guest bedroom to the back of the house, and moving the entrance to the hall bathroom), I realized I would also need to utilize M’s suggestion of having a back hallway connecting the two sides.
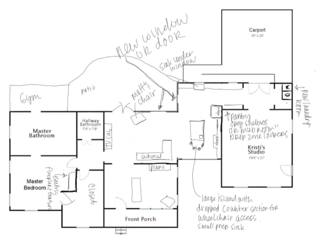
So when I put all those ideas together, this was my original plan.
Starting with the entry, I would actually have a proper foyer because it would add some separation between the entry and the dining room to the right. The music room and kitchen would combine to become the living room. The breakfast room and pantry combine to become the kitchen, and the half bath in the study becomes the walk-in pantry from the back doors. And then on the other side, the current guest bedroom becomes the closet/laundry room combination. At the back of the house, we added a gym and a guest bedroom, and a gallery connects the guest bedroom/bath and the kitchen, and also provides space for a hallway to access both guest areas so the hall bathroom can maintain its current size.
So I was thinking about it for a couple of days and I was so sure that this was… The only oneThis was the final plan. I was so sure of it that my mother, brother and I went over it in great detail over Sunday lunch and they both loved the plan.
But the more I thought about it, the more I had doubts about a couple of things. First, I love my current entry and living room. I love them. As much as I’ve told myself over the years that I’d prefer a formal entry, when push comes to shove, I love what I have. I like the spaciousness of it, and I finally have a front living room that I love. It took me one too many tries to get to that point, and now that I have it, the thought of changing it makes me sad.
Also, if I turn that front living room into a dining room, the idea of putting up some kind of wall, even with a huge opening, to separate the entry from the dining room made me sad. But I don’t like the idea of having that room as a dining room either. without A kind of partition. It seems strange to walk straight into a dining room. Without the partition it seems strange, but with the partition it seems to divide the space, which is so open and airy and beautiful now. I don’t want to spoil it.
Also, I didn’t like the idea of the family room TV being visible from the front door. And believe me when I say that I tried every possible option for arranging the furniture, taking into account Matt’s mobility, and the only way I could accomplish it was to place the TV on the wall shared with the hall bathroom.
And lastly, the music room is my favorite room in the house. I started thinking about all the things I would have to undo and redo, including the ceiling, and I got really sad. I would lose the doors, the bookshelves, the ceiling… literally everything. And there really isn’t room anywhere else for the piano. That piano has sentimental value to me and I can’t take it away. I just won’t. So the thought of losing this room altogether seemed unbearable to me.
So in the end, I added a new family room as part of the expansion…
I know what you’re thinking. We’re right back where we started. Well, sort of, but not quite. This addition is still quite a bit smaller than the original plan (720 square feet for this one, compared to 1,215 for the original). Plus, there are phases with this plan that can spread the financial burden out over time instead of having it all at once. And the bottom line is that I thoroughly reviewed the estimate I received from the contractor last year (the one that came in at $236,000) to see how much he budgeted for each thing and how I could reduce those costs. The most obvious budget item is the contractor cost. Just by being my own contractor, we can save $50,000 right away. But there were plenty more opportunities to reduce costs. I’ll share all of that in full detail at a later date.
But as of today, I’m almost 100% sure that this is the final plan. And I’m very glad that we’ve been on this long journey for the last few months because we’re ending up with a very different plan than we originally had, and I think this one is much better and makes more efficient use of space.
Just for comparison, here is the original plan after adding the walk-in closet and storage closet…
And this is the new and improved plan…
Addicted 2 Decorating is a place where I share my DIY and decorating experience while remodeling and decorating the 1948 home my husband Matt and I purchased in 2013. Matt has multiple sclerosis and is unable to do physical labor, so I do most of the work around the house alone. You can learn more about me here.